Ready to Build .16 Acre Lot with Foundation

For Sale -
USD 125,000
MLS number: L2105
0.16 Acre
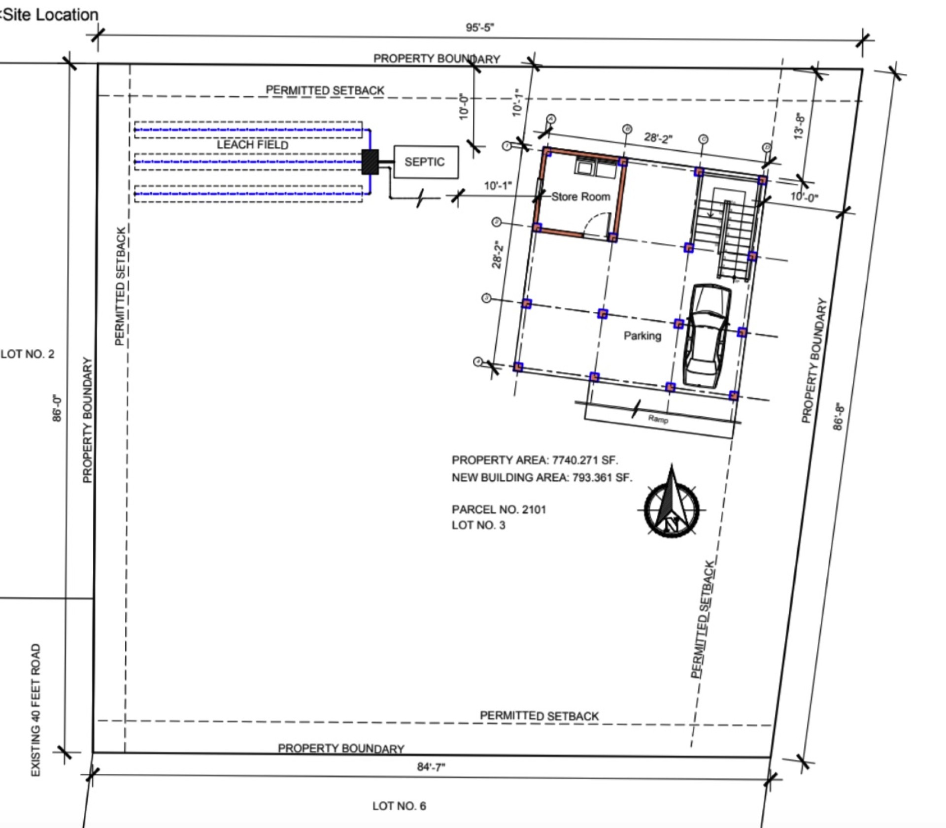
Keller Williams Belize is pleased to announce the Exclusive Listing of Parcel 2811 which is .157 Acre and located off of Thunderbird Road just north of the Placencia Airport. This corner lot has fencing on the West and North side and measures 86 feet on the North and South boundaries, 95 feet on the West and 84 feet on the East. The lot is cleared and filled and has the start of a custom home. A 28’ x 28’ concrete floating foundation sits below a 28’x28’ Concrete pad. There are 8 Concrete uprights ready for a house that is 10 feet off the ground. The plans call for a 1 Bedroom/1 Bath home that is 19’x19’ with a 304 Square Foot Covered wrap around deck. Seller has a copy of the approved plans.

The location is perfect for a small house in a quiet neighborhood only a few miles north of the Placencia Village.
Download brochure
Location
Land size0.16 Acre

Similar Properties